上海%莘荟招商信息

项目信息

图片

项目位置静安区北宝兴路624号

业态构成:商业+办公+公寓

车位数量:百余



项目特色

➢ 全新活力社区型购物中心

➢ 链接着人与人的交流社区空间

➢ 生态的亲子宠物友好的立体街区


区位交通

图片

| 公共交通 |

距离上海马戏城地铁站(1号线)步行10min

距离延长路地铁站(1号线)步行10min

周边步行5min内,配备有5个公交站台

公共交通可达性好


| 项目位置 |

东侧毗邻北宝兴路

距离上海大学延长校区步行10min

图片


办公项目技术参数


项目名称

%莘荟

交付日期

2021年5月下旬

项目总面积

44,426.71㎡

办公部分

5#楼5~7层:7,418.52㎡

标准层面积

5F:2,471.7㎡

6-7F:2,473.41㎡

楼层设计荷载

2.5KN/m²

层高

5~6F:约4.75m;

7F:约6m

架空地板

吊顶

混凝土板

墙面

砌体隔墙结构面现状交付

空调系统

VRV空调(公区)

可加装独立空调

总电量

7,080kva

电梯

5#楼:2部客梯,1部货梯

交付标准

毛坯

停车位

百余个


2.

项目定位

图片

(同“百兴汇”发音)


年轻灵魂的全生活舞台

年轻家庭的多漾起居空间


百联创新

百态兴起

汇聚你我,融者无界


项目愿景


01


为周边社区提供

一站式生活全需求解决方案

无时无刻地为社区

提供超出期望的内容


图片


02


形成智慧社区生活圈

打造首个百联智慧化数字化社区商业

线上线下一体化数智运营

图片


03


全新活力

社区型购物中心


图片
图片
图片


04


情景式购物环境


图片
图片
图片
图片


目标客群

  • 周边覆盖总人口数约22.2万,预计26-45岁主力消费人群占比49%

  • 周边居民为主力消费人群,同时服务周边办公商务人士及高校师生

  • 消费等级以中高阶层为主


图片


图片



业态规划

图片
图片


楼层平面图

图片

1F平面图

图片

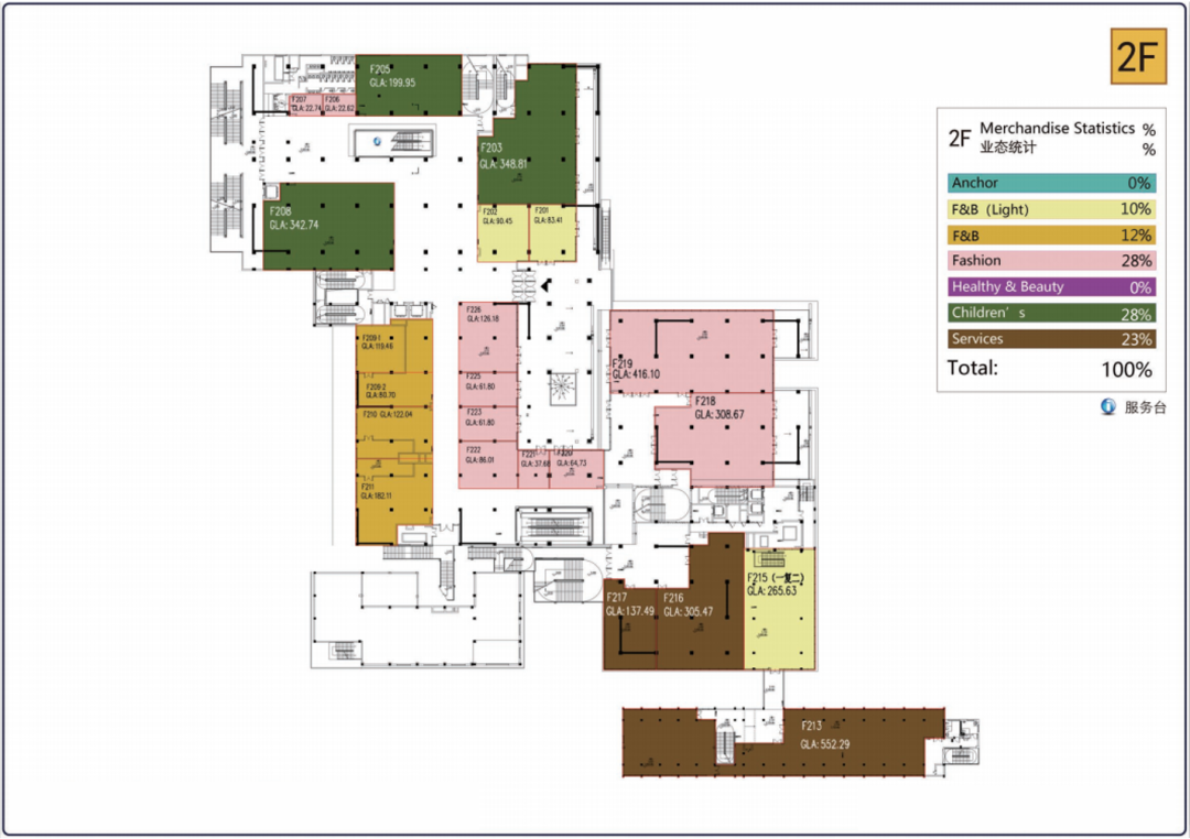
2F平面图

图片

3F平面图

图片

4F平面图

图片

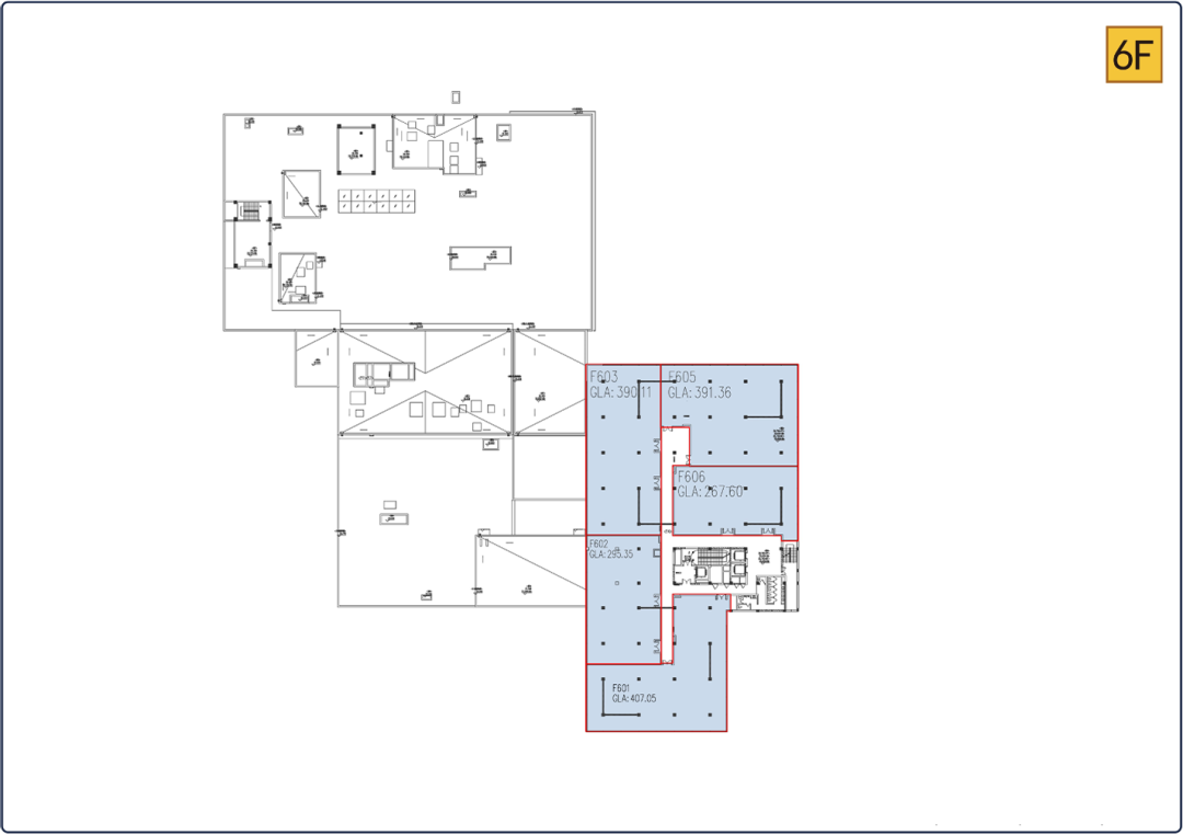
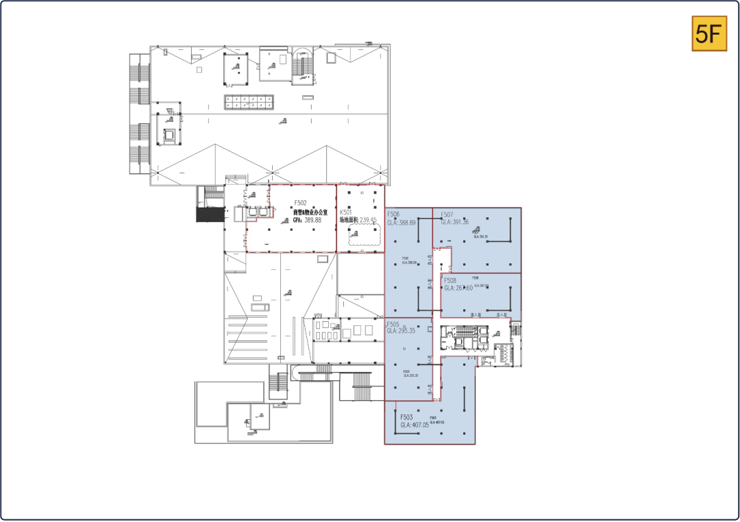
5F平面图

图片

6F平面图

图片

7F平面图

融河联盟使命必达:大宗资产交易、项目融资、抵押贷款、融资租赁、商业保理、地产开发商前融、上市公司摆账、过桥、供应链金融、工程总包分包、国企、政府平台融资等服务。

本平台深耕长三角,布局全中国,多年的从业经历让我们有丰富的经验,建立了良好的口碑。同时也沉淀了数百家知名公司客户,全方位为企业匹配优质资源,提供高效一站式服务。


如有上述业务合作,欢迎联系我们!


服务热线:400-088-2717

项目合作电话:17521198777


地址:上海市长宁区中山西路933号虹桥银城大厦2717室
电话:400-088-2717
电子邮箱:ronghelianmeng@126.com