上海贵州路招商信息

1.

项目信息

图片

            项目位置黄浦区贵州路263号

            建筑面积:3,187.85㎡

            建筑层数:4

            始建年代:1936年

            用地性质:商业



项目特色

➢ 全面升级业态

➢ 全新定义办公、休闲、消费新场景


区位交通

图片

| 公共交通 |

距离曲阜路地铁站(8、12号线)步行7min

距离人民广场地铁站(1、8号线)步行9min

周边步行5min内,配备有3个公交站台

公共交通可达性好


| 项目位置 |

毗邻北京东路,面临次干道贵州路

驾车可达性佳


2.

项目定位


历史沿革


1930年,由戴季陶、陈蔼士、陈果夫、潘公展、杨谱笙等在上海圣寿庵原址(在今上海贵州路263号)上建成了湖社社所,辟二楼为陈英士纪念堂,一楼则建有一座颇具规模的会议厅,后来这座会议厅于1938年前后改为上海大来剧场,袁雪芬、张桂凤、范瑞娟等越剧名家曾在其中演出。


图片


老建筑的新生


创意办公

以城市更新建设为支撑

推进创新、创业基地建设


配套商业

填补周边配套空缺

同时服务黄浦剧院人流


图片
图片


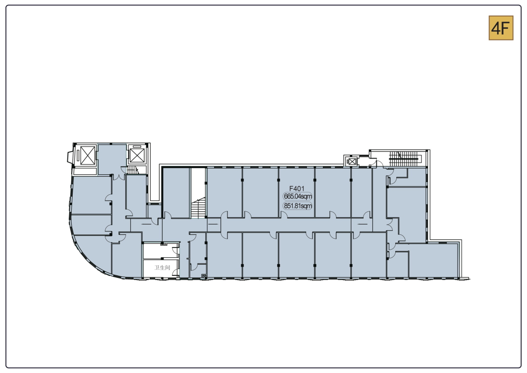
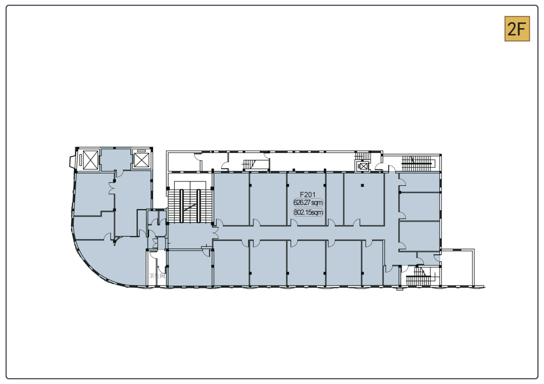
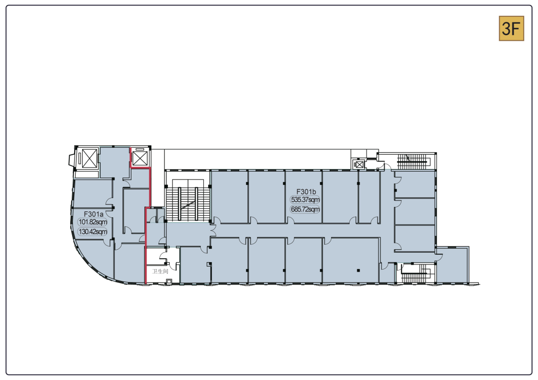
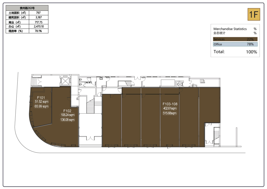
楼层平面图


图片
图片

1F平面图

图片

2F平面图

图片

3F平面图

图片

4F平面图

融河联盟使命必达:大宗资产交易、项目融资、抵押贷款、融资租赁、商业保理、地产开发商前融、上市公司摆账、过桥、供应链金融、工程总包分包、国企、政府平台融资等服务。

本平台深耕长三角,布局全中国,多年的从业经历让我们有丰富的经验,建立了良好的口碑。同时也沉淀了数百家知名公司客户,全方位为企业匹配优质资源,提供高效一站式服务。


如有上述业务合作,欢迎联系我们!


服务热线:400-088-2717

项目合作电话:17521198777



地址:上海市长宁区中山西路933号虹桥银城大厦2717室
电话:400-088-2717
电子邮箱:ronghelianmeng@126.com