上海百空间香港路招商信息

1.

项目信息

图片

           项目位置:香港路117

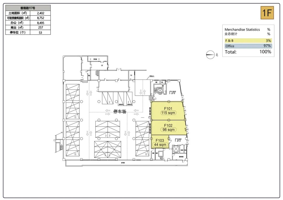
           建筑面积:10,005.5㎡

           业态构成:办公+商业

           始建年份:1920年

           建筑层数:6层



项目特色

➢ 新中存旧的跨时空交谈

➢ 以简驭繁,重构创新

➢ 传递老建筑本身的静谧感和极简美


区位交通

图片

| 公共交通 |

距离天潼路地铁站(10、12号线)步行10min

距离南京东路地铁站(2、10号线)步行10min

周边步行5min内,配备有5个公交站台


| 项目位置 |

毗邻主干道四川中路,

面临次干道香港路,驾车可达性较佳。


办公项目技术参数

_

交付日期

已交付

可租赁面积

8,721.39㎡

历史等级

历保三级

办公建面

2-6层:约8,464.02㎡

标准层面积

1F:257.37㎡

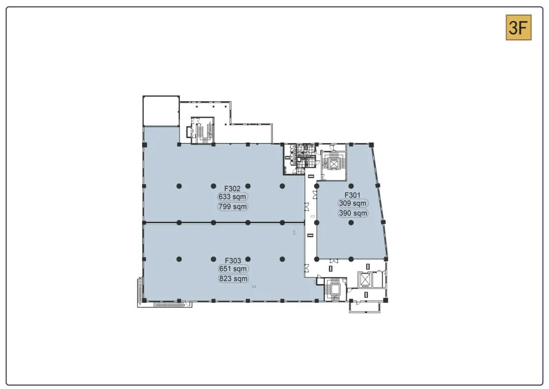
2-3F:2,003.39㎡

4F:2,002.10㎡

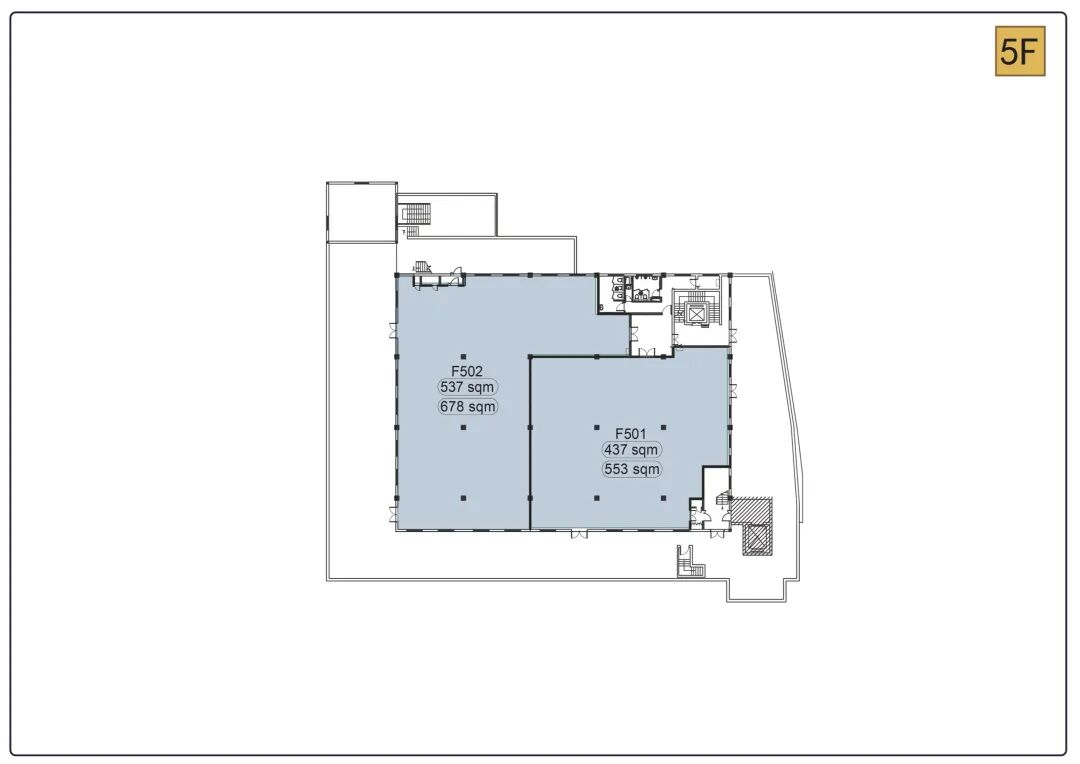
5F:1,227.92㎡

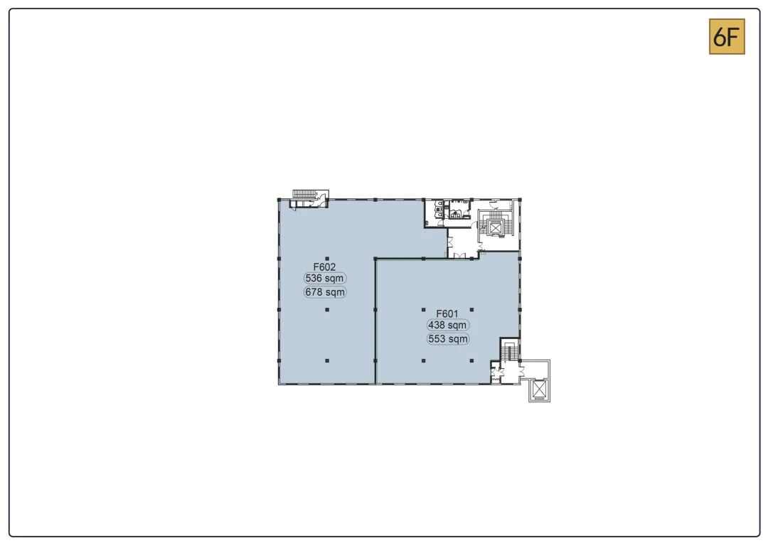
6F:1,227.22㎡

得房率

79.36%

楼层设计荷载

1F:2.5KN/㎡

2-5F:2KN/㎡

层高

1F:4.3m

2-3F:4.1m

4F:3.8m

5F:3.3m

6F:3.25m

架空地板

吊顶

烟感、风口

墙面

水泥墙

空调系统

VRV空调(公区)

可加装独立空调

电梯

2部客梯

停车位

53个

交付标准

毛坯,公区精装带空调


楼层平面图

图片
图片

1F平面图

图片

2F平面图

图片

3F平面图

图片

4F平面图

图片

5F平面图

图片

6F平面图

融河联盟使命必达:大宗资产交易、项目融资、抵押贷款、融资租赁、商业保理、地产开发商前融、上市公司摆账、过桥、供应链金融、工程总包分包、国企、政府平台融资等服务。

本平台深耕长三角,布局全中国,多年的从业经历让我们有丰富的经验,建立了良好的口碑。同时也沉淀了数百家知名公司客户,全方位为企业匹配优质资源,提供高效一站式服务。


如有上述业务合作,欢迎联系我们!


服务热线:400-088-2717

项目合作电话:17521198777


地址:上海市长宁区中山西路933号虹桥银城大厦2717室
电话:400-088-2717
电子邮箱:ronghelianmeng@126.com