上海百空间淮安路招商信息

1.

项目信息

图片

项目位置:静安区淮安路668

建筑面积:6,222㎡

用地性质:商业

现状功能:办公

建筑层数:6层

竣工日期:1983年



项目特色

➢ 极简主义设计美学,兼具美感与实用性

➢ 重构空间秩序,启发创意灵感


区位交通

图片

| 公共交通 |

距离江宁路地铁站步行10min

距离汉中路地铁站步行10min

5min内,配备有5个公交站台


办公项目技术参数



项目名称

百空间·淮安路668号

交付标准

现房

项目总面积

6,222㎡

楼层

1-6层+4层赠送室外露台

(露台使用面积约140㎡)

标准层面积

1F:1,057.8㎡

2-3F:1,066.8㎡

4-6F:924.1㎡

产权性质

商业

持有

百联资控

物业管理公司

第一太平戴维斯物业顾问

(上海)有限公司

层高

1F:4.5m

2-5F:3.8m

6F:4m

地板

木地板

吊顶

裸顶喷漆

墙面

白色乳胶漆

空调系统

VRV空调

供电

总电量:889kva

交付标准

精装带家具


楼层平面图

图片
图片

1F平面图

图片

2F平面图

图片

3F平面图

图片

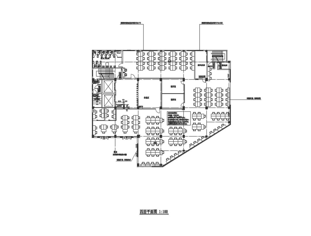
4F平面图

图片

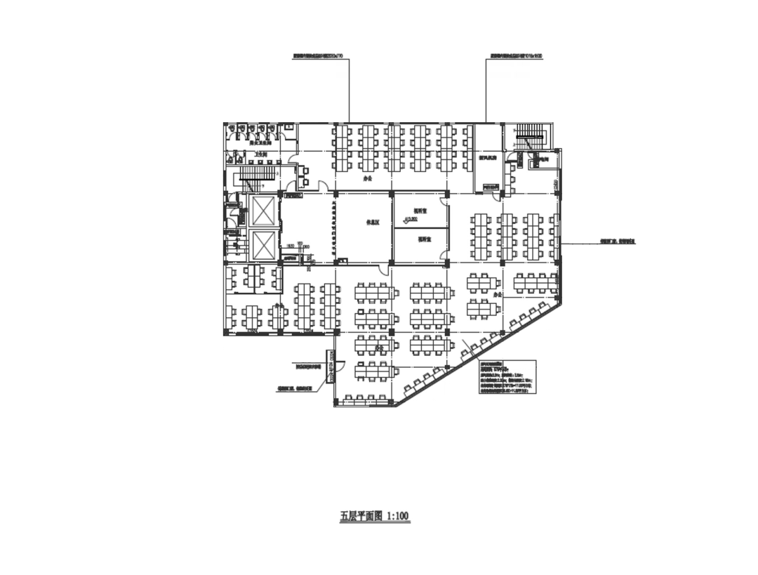
5F平面图

图片

6F平面图

融河联盟使命必达:大宗资产交易、项目融资、抵押贷款、融资租赁、商业保理、地产开发商前融、上市公司摆账、过桥、供应链金融、工程总包分包、国企、政府平台融资等服务。

本平台深耕长三角,布局全中国,多年的从业经历让我们有丰富的经验,建立了良好的口碑。同时也沉淀了数百家知名公司客户,全方位为企业匹配优质资源,提供高效一站式服务。


如有上述业务合作,欢迎联系我们!


服务热线:400-088-2717

项目合作电话:17521198777


地址:上海市长宁区中山西路933号虹桥银城大厦2717室
电话:400-088-2717
电子邮箱:ronghelianmeng@126.com