上海百空间马登仓库招商信息

1.

项目信息

图片

项目位置:虹口区杨树浦路147

建筑面积:16,213㎡

建筑层数:7层(实际层数6层)

始建年份:1929年

项目原名:马登仓库



区位交通

图片

| 公共交通 |

距离杨树浦路地铁站(4号线)步行约4min

距离提篮桥地铁站(12号线)步行约8min

周边步行5min内,配备有10个公交站台


| 项目位置 |

面临主干道杨树浦路

驾车可达性较佳,地块综合可达性好


| 周边配套 |

项目南面依托北外滩商务中心

其他面均为住宅小区及里弄住宅

周边商务人士和居民较多

图片


办公项目技术参数


项目总建面

16,213m²

办公形态

办公 (商业15%),文物保护点

交付日期

已交付

标准层面积

1F:2,197㎡

2F:2,859㎡

3F:3,624㎡

5F:2,526㎡

6F:2,512㎡

7F:2,494㎡

开发商

百联资控

物业管理公司

第一太平戴维斯物业顾问

(上海)有限公司

层高

1F:4.27m

2-3F:3.66m

5F:3.66m

6F:3.96m

7F:3.7m

架空地板

木地板

吊顶

裸顶,空调和灯烟感、

条形灯筒灯、风口

墙面

白色乳胶漆

空调系统

VRV空调

电梯

客梯四部

停车位

近20个

交付标准

精装带家具


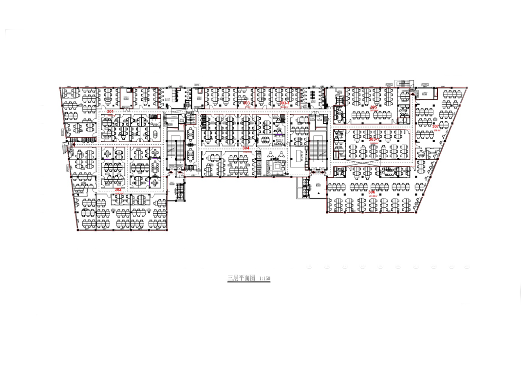
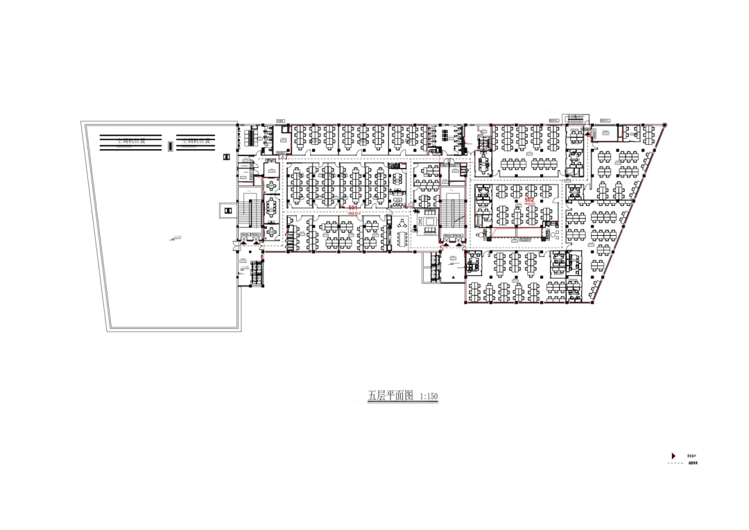
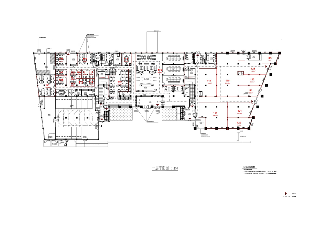
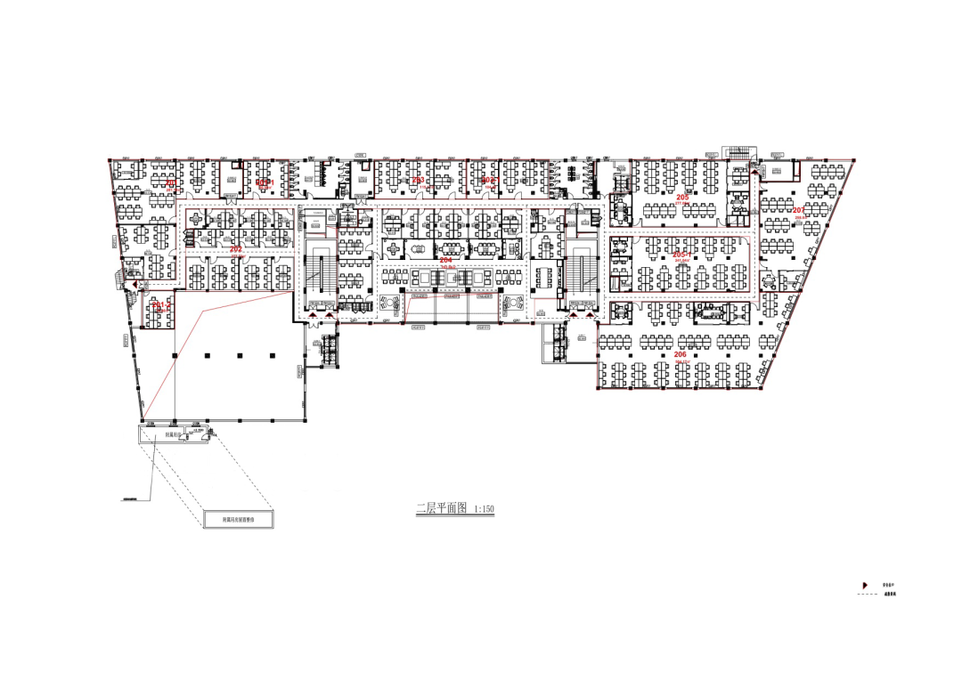
楼层平面图

图片
图片

1F平面图

图片

2F平面图

图片

3F平面图

图片

5F平面图

图片

6F平面图

图片

7F平面图

2.

项目服务&环境体验

精美办公室装修,提升工作幸福感

  • 宽敞明亮的公共区域,一楼可轻松容纳200人活动;

  • 独立门禁,7*24小时畅通;

  • 高配置会议室;

  • 精致茶水吧(可使用开水机、咖啡机、茶包、冰箱、微波炉等);

  • 私密电话间;

  • 贴心储藏空间;

  • 整层VRV空调,加班畅通。

图片
图片
图片


共享办公室专属服务,给予租户贴心关怀

  • 快递代收服务;

  • 24小时安保服务;

  • 公共区域提供保洁服务;

图片


灵活办公空间,空间演绎新格局


图片
图片

融河联盟使命必达:大宗资产交易、项目融资、抵押贷款、融资租赁、商业保理、地产开发商前融、上市公司摆账、过桥、供应链金融、工程总包分包、国企、政府平台融资等服务。

本平台深耕长三角,布局全中国,多年的从业经历让我们有丰富的经验,建立了良好的口碑。同时也沉淀了数百家知名公司客户,全方位为企业匹配优质资源,提供高效一站式服务。


如有上述业务合作,欢迎联系我们!


服务热线:400-088-2717

项目合作电话:17521198777



地址:上海市长宁区中山西路933号虹桥银城大厦2717室
电话:400-088-2717
电子邮箱:ronghelianmeng@126.com