上海百空间天津路招商信息

1.

项目信息

图片

项目位置:黄浦区天津路66

建筑面积:3,166.94㎡

业态构成:创意办公

始建年份:1936年

建筑层数:地下1层+地上4层



项目特色

采用当代设计元素,创造独特的高品质办公空间。

传统与现代碰撞,复古与时尚交融,使老建筑迸发出崭新的活力。


区位交通

图片

| 公共交通 |

距离南京东路(2、10号线)步行1min起

距离人民广场(1、2、8号线)步行8min

公共交通可达性好


| 项目位置 |

商业配套完善

周边有多个大型购物中心


图片


办公项目技术参数


交付日期

现房

项目总面积

3,166.94㎡

楼层

地下1F+地上4F

产权性质

商业

标准层面积

地下1层:603.16㎡

1F:607.25㎡

2-3F:674.06㎡

4F:608.41㎡

开发商

百联资控

物业管理公司

第一太平戴维斯物业顾问

(上海)有限公司

层高

地下1层:2.5m

1F:5m

2-3F:3.7m

4F:3m

地板

木地板

吊顶

裸顶、空调和灯烟感、

条形灯、筒灯、风口

墙面

白色乳胶漆墙面/玻璃隔断

空调系统

VRV空调

交付标准

地下1层-3F精装带家具

4F标准交付


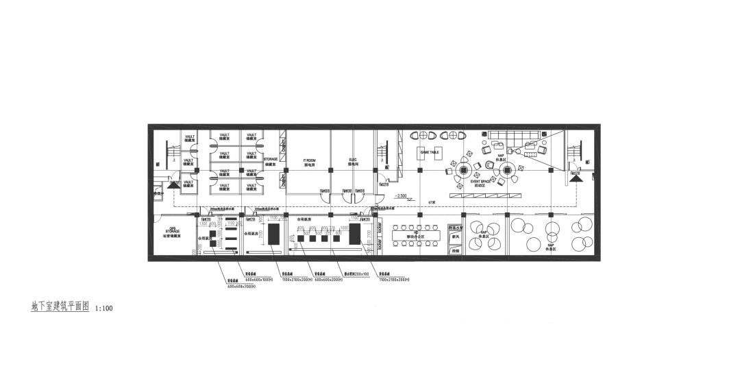
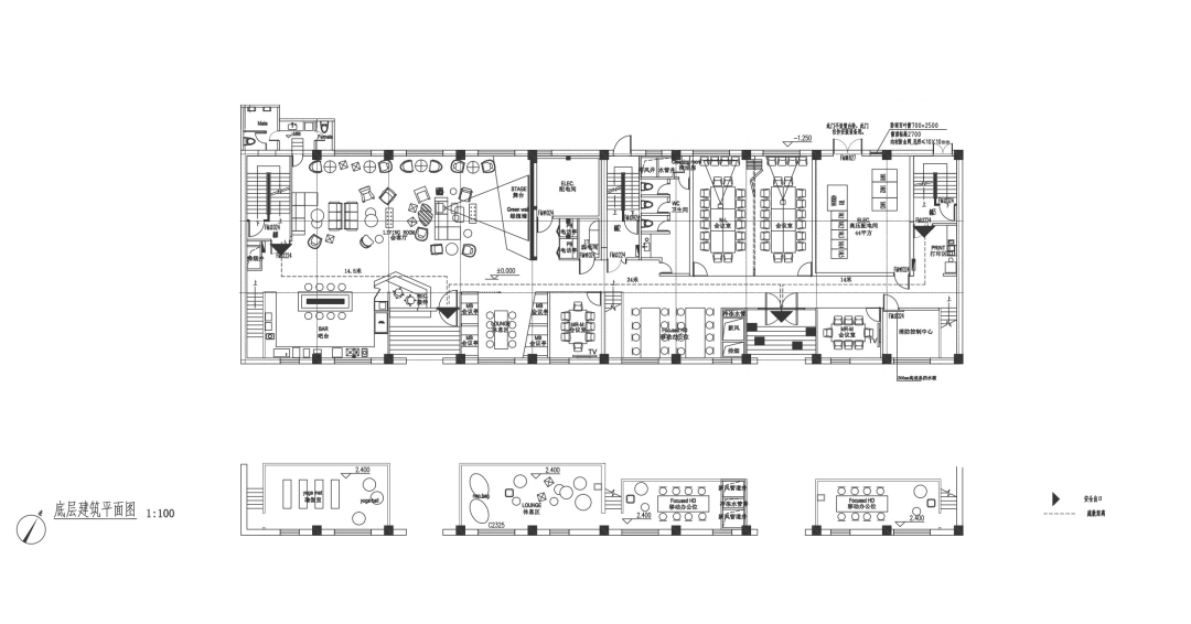
楼层平面图

图片
图片

地下1层平面图

图片

1F平面图

图片

2F平面图

图片

3F平面图

图片

4F平面图

图片
图片
图片
图片
图片

项目实景图

融河联盟使命必达:大宗资产交易、项目融资、抵押贷款、融资租赁、商业保理、地产开发商前融、上市公司摆账、过桥、供应链金融、工程总包分包、国企、政府平台融资等服务。

本平台深耕长三角,布局全中国,多年的从业经历让我们有丰富的经验,建立了良好的口碑。同时也沉淀了数百家知名公司客户,全方位为企业匹配优质资源,提供高效一站式服务。


如有上述业务合作,欢迎联系我们!


服务热线:400-088-2717

项目合作电话:17521198777


地址:上海市长宁区中山西路933号虹桥银城大厦2717室
电话:400-088-2717
电子邮箱:ronghelianmeng@126.com