上海百空间四行仓库光三分库招商信息

1.

项目信息

图片

项目位置:静安区光复路127号

用地面积:1,322㎡

总建筑面积:4,637㎡

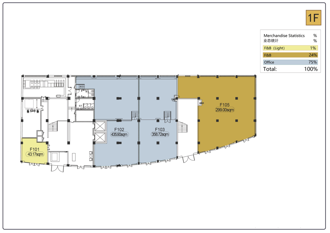
· 商业面积:813m²

· 办公面积:3,824m²

建筑层数:3+1

始建年代:1931年

历史沿革:历保三级(四行仓库光三分库)

业态构成:商业配套+办公



项目特色

➢ 坐拥城市核心地段的办公便利

➢ 独享老建筑厚重的文化底蕴

➢ 怀抱苏州河畔的绝美风光

图片


区位交通

图片

| 公共交通 |

距离曲阜路地铁站(8、12号线)步行7min

距离新闸路地铁站(1号线)步行4min

周边步行5min内,配备有4个公交站台

公共交通可达性好


| 项目位置 |

面临主干道光复路,驾车可达性佳


技术参数



交付日期

现房

项目总建面

4,637㎡

标准层建面

1F:1,350.15㎡

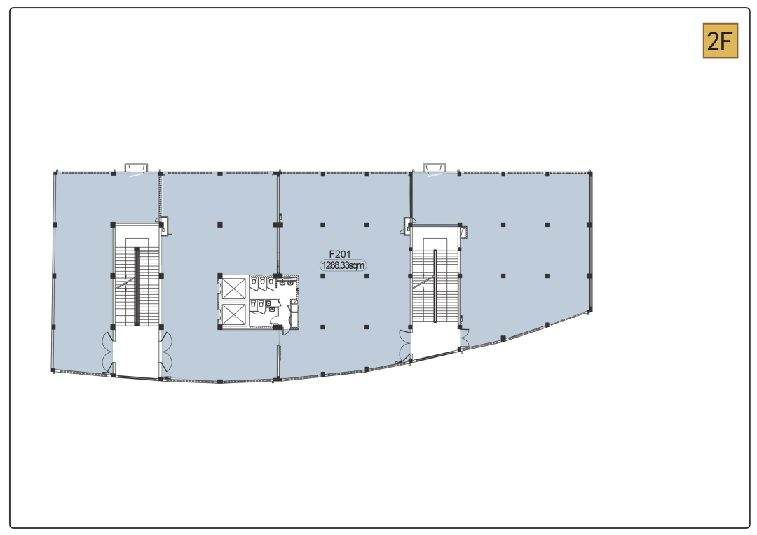
2F:1,288.33㎡

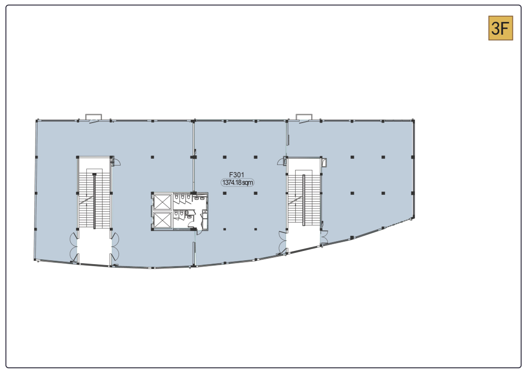
3F:1,374.18㎡

办公形态

F01&105商业;4F露台西餐厅;F102~103&2F-3F办公

产权性质

办公 (商业25%)

得房率

整栋约61%

以实际测量为准

层高

1F:4.7m

2F:4.3m

3F:4.1m

4F:3.1m

开发商

百联资控

物业管理

百联物业

吊顶

裸顶,烟感

墙面

水泥墙

空调系统

VRV空调(公区)

可加装独立空调

电梯

2部客梯

交付标准

毛坯


2.

项目定位


历史沿革

光复路127号(光三库),原称“北四行”,原福康、福源钱庄及仓库,后为金城银行、中南银行、大陆银行及盐业银行的联合仓库。


建于1931年。三层的砖木混粘土结构。红墙白立柱将整座建筑的外立面装饰的分外靓丽。建筑面积4,637平方米。


现为四行仓库“光三分库”,底楼曾是文化用具交易市场。

图片


赋能生机 重新定义

图片
图片
图片
图片
图片


楼层平面图

图片
图片

1F平面图

图片

2F平面图

图片

3F平面图

图片

RF平面图

融河联盟使命必达:大宗资产交易、项目融资、抵押贷款、融资租赁、商业保理、地产开发商前融、上市公司摆账、过桥、供应链金融、工程总包分包、国企、政府平台融资等服务。

本平台深耕长三角,布局全中国,多年的从业经历让我们有丰富的经验,建立了良好的口碑。同时也沉淀了数百家知名公司客户,全方位为企业匹配优质资源,提供高效一站式服务。


如有上述业务合作,欢迎联系我们!


服务热线:400-088-2717

项目合作电话:17521198777


地址:上海市长宁区中山西路933号虹桥银城大厦2717室
电话:400-088-2717
电子邮箱:ronghelianmeng@126.com