上海百空间卜内门洋行招商信息

项目位置黄浦区四川中路133号

建筑面积4,711㎡(其中办公3522.54m²)

建筑层数7

始建年份1921年

项目特色

  以都会生活、精英社群、大师空间为主题

➢   打造轻奢办公产品线标杆项目

➢   上海市二类优秀历史保护建筑

➢   一线外滩极致江景休闲景观露台

区位交通

| 公共交通 |

距离南京东路地铁站(10、2号线)步行11min

距离豫园地铁站(10号线)步行13min

周边步行5min内,配备有10个公交站台


| 项目位置 |

步行3min即达外滩

面临主干道四川中路

驾车可达性较佳,地块综合可达性好


办公项目技术参数


交付日期

现房

标准层面积

590-640㎡

得房率

74%

层高

1F:3.845m;

MF:3.8m;

2F-4F:3.81m;

5F:5.64m;

6F:5.21m;

7F:4.41m

架空地板

吊顶

烟感、风口

墙面

毛坯

空调系统

VRV空调

公区配空调,其他毛坯

供电

总电量:630kva

电梯

2

楼层平面图

图片

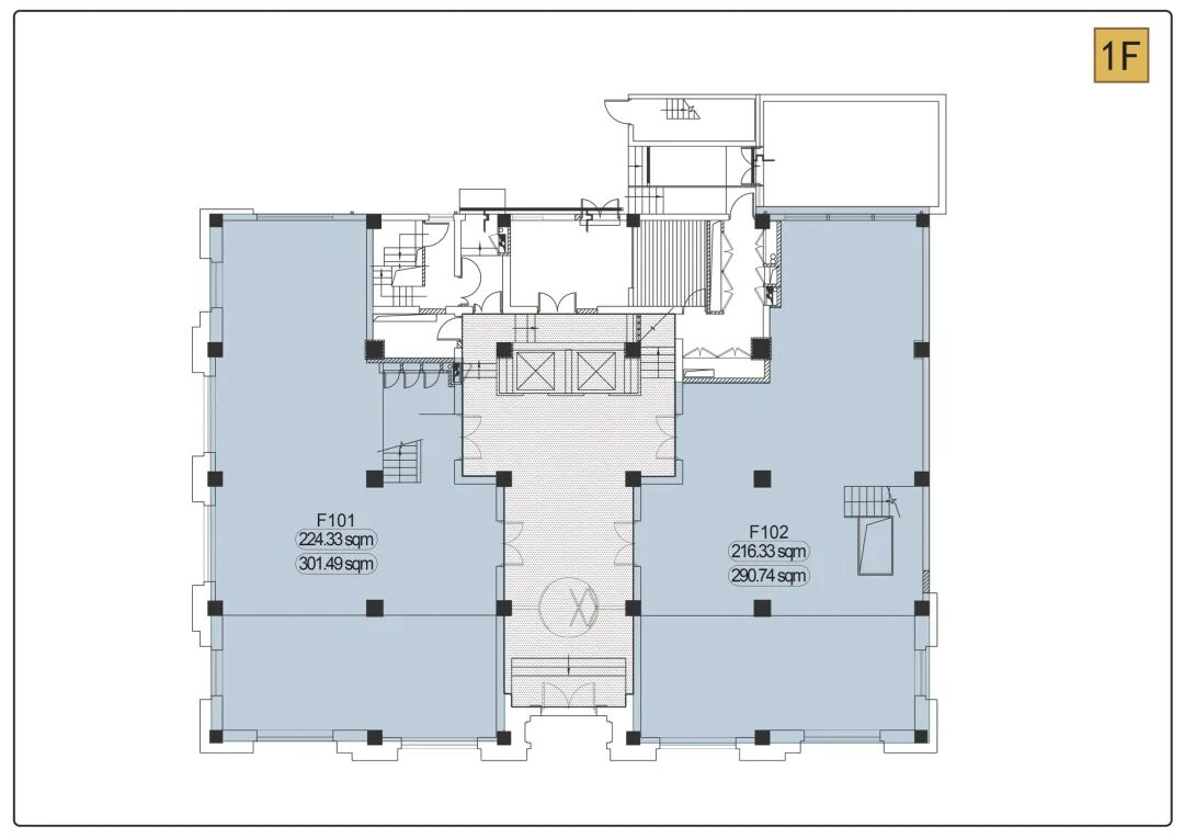
1F平面图

图片

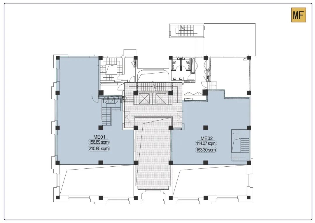
MF平面图

图片

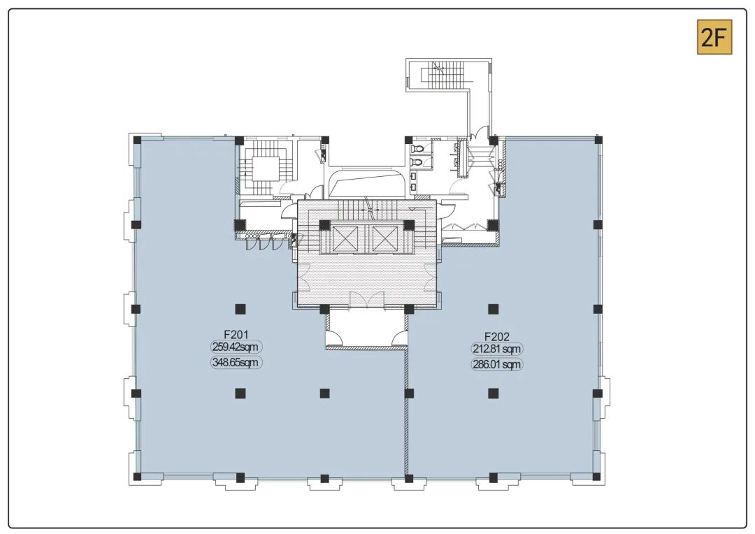
2F平面图

图片

3F平面图

图片

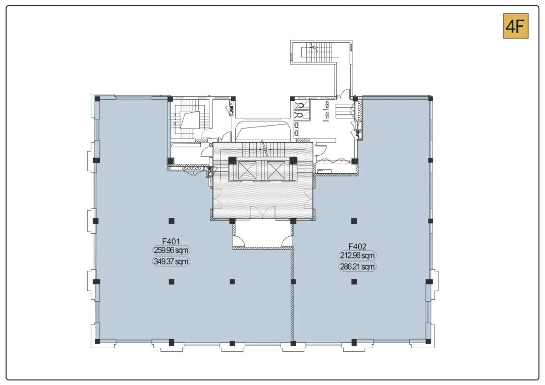
4F平面图

图片

5F平面图

图片

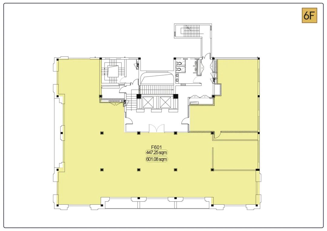
6F平面图

图片

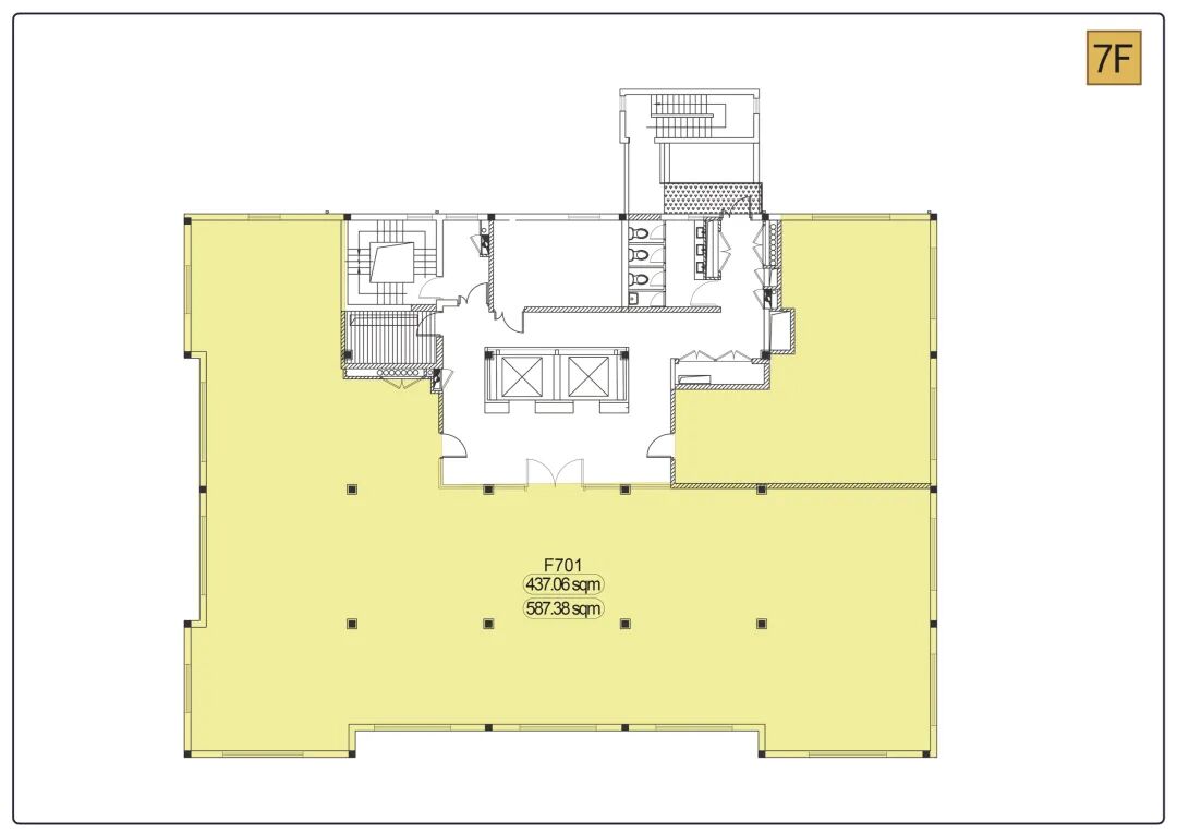
7F平面图

图片

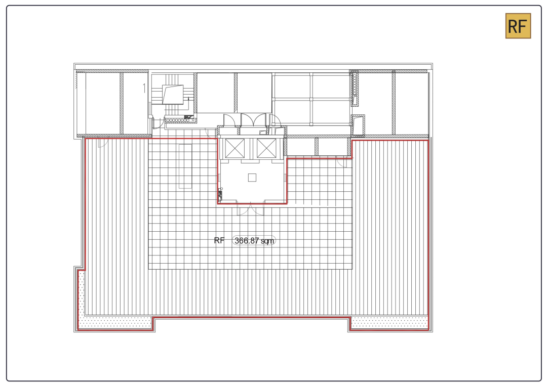
RF平面图


2.

项目定位

图片
图片


图片

融河联盟使命必达:大宗资产交易、项目融资、抵押贷款、融资租赁、商业保理、地产开发商前融、上市公司摆账、过桥、供应链金融、工程总包分包、国企、政府平台融资等服务。

本平台深耕长三角,布局全中国,多年的从业经历让我们有丰富的经验,建立了良好的口碑。同时也沉淀了数百家知名公司客户,全方位为企业匹配优质资源,提供高效一站式服务。


如有上述业务合作,欢迎联系我们!


服务热线:400-088-2717

项目合作电话:17521198777



地址:上海市长宁区中山西路933号虹桥银城大厦2717室
电话:400-088-2717
电子邮箱:ronghelianmeng@126.com